ANTRAG AUF ABGESCHLOSSENHEITSBESCHEINIGUNG IN Hanau

SICHERE UNTERLAGEN AUF BASIS EINES LASERSCANS - INKLUSIVE AUFTEILUNGSPLAN UND ANTRAGSEINREICHUNG.

Wir schaffen Klarheit, damit dein Gebäude nachvollziehbar in Eigentumseinheiten aufgeteilt werden kann.

PRÄZISER AUFTEILUNGSPLAN ALS BASIS FÜR EINEN SAUBEREN ANTRAG.

Fehlende, veraltete oder widersprüchliche Bestandspläne kosten Zeit, erzeugen Rückfragen und verzögern den Prozess. Deshalb erfassen wir das Gebäude für deinen Antrag auf Abgeschlossenheitsbescheinigung in Hanau nicht aus der Distanz, sondern auf Basis eines eigenen Laserscans. So schaffen wir eine belastbare Grundlage für alles, was danach kommt. Der daraus abgeleitete Aufteilungsplan schafft Klarheit und Sicherheit für alle weiteren Schritte.
Du erhältst kein Durcheinander einzelner Dateien, sondern ein strukturiertes Datenpaket. Dank klarer Ordnerlogik, eindeutiger Benennung und einer aktuellen Version funktioniert die Übergabe intern ohne Rückfragen, sodass alle mit denselben Unterlagen weiterarbeiten können.

SMART+AGILE STEHT FÜR AUFTEILUNG VON GEBÄUDEN MIT SYSTEM

Wir beginnen nicht mit Vermutungen, sondern mit einer präzisen Bestandserfassung. Hierzu wird das Gebäude vor Ort per Laserscan erfasst, die Daten werden registriert und qualitätsgesichert. Auf dieser Grundlage erstellen wir den erforderlichen Aufteilungsplan. So entsteht eine belastbare Basis für deinen Antrag auf eine Abgeschlossenheitsbescheinigung – sauber und nachvollziehbar. Gerne übernehmen wir auf Wunsch auch die Antragseinreichung und die Kommunikation mit der zuständigen Behörde in Hanau. Was zählt, ist ein klar geführter Prozess, der sich leicht anfühlt. Vertrauen durch Klarheit, Ruhe durch Struktur, Stärke durch Substanz.

DEINE VORTEILE AUF EINEN BLICK

Du erhältst einen Aufteilungsplan, der auf gescannten und qualitätsgesicherten Unterlagen basiert, statt auf unsicheren Annahmen. Auf Wunsch begleiten wir dich bei der Antragstellung bis zur Einreichung. Am Ende erhältst du eine belastbare Grundlage, die eine korrekte Bearbeitung durch das Notariat und das Grundbuchamt ermöglicht.

Angebot abrufen

Informationen anfordern

Erstgespräch vereinbaren

AUFMASS + AUFTEILUNGSPLAN

KORREKTER AUFTEILUNGSPLAN AUF BASIS DES BESTANDS.

Wir erfassen dein Gebäude vor Ort in Hanau per Laserscanning. Auf Basis dieser belastbaren Datengrundlage erstellen wir den erforderlichen Aufteilungsplan. Altpläne können beim Abgleich helfen, bilden aber nicht die Grundlage unserer Leistung. Maßgeblich ist der gescannte Bestand.

Beispiel

Wenn vorhandene Pläne nicht mehr zum tatsächlichen Bestand passen oder Umbauten nie sauber nachgeführt wurden, führt das im Antrag fast immer zu Rückfragen. Mit der scanbasierten Aufnahme schaffen wir eine klare Ausgangsbasis, sodass der Aufteilungsplan auf nachvollziehbaren Bestandsdaten und nicht auf Unsicherheit aufbaut.

Mobiler 3D-Laserscanner für die digitale Gebäudeerfassung mit eingeblendeten Grundriss- und Messdaten für Aufteilungspläne

AUFTEILUNGSPLAN

DER AUFTEILUNGSPLAN - EINHEITEN KLAR UND
NACHVOLLZIEHBAR.

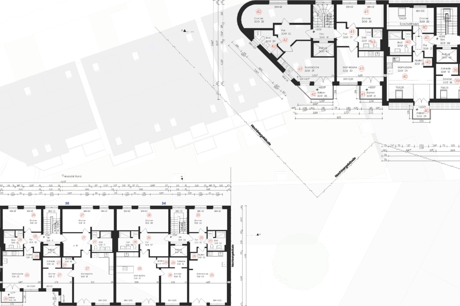
Für die Aufteilung eines Gebäudes in einzelne Einheiten sind grobe Bestandspläne oder alte Zeichnungen nicht ausreichend. Der Aufteilungsplan muss den tatsächlichen Zustand des Gebäudes abbilden und die Zuordnung der einzelnen Bereiche zu den jeweiligen Einheiten darstellen. Genau diese Klarheit ist die Grundlage dafür, dass ein Antrag auf Abgeschlossenheitsbescheinigung in Hanau sauber vorbereitet werden kann.

Sorgfalt, die im Antrag wirklich zählt

Der Aufteilungsplan ist somit keine beliebige Planung, sondern die zentrale Grundlage für die Eigentumsbildung. Er stellt den Bestand auf verständliche und belastbare Weise dar und sorgt dafür, dass Einheiten, Abgrenzungen und Planstände nicht auf unsicheren Altunterlagen beruhen.

Digitaler Aufteilungsplan eines Wohngebäudes mit mehreren Wohnungsgrundrissen, Maßketten und Lagebezug
Unterlagen für die Abgeschlossenheitsbescheinigung mit Aufteilungsplänen, Checkliste und Antragsformular auf einem Schreibtisch

ANTRAG + KORRESPONDENZ

VOM AUFTEILUNGSPLAN ZUM VOLLSTÄNDIG VORBEREITETEN ANTRAG

Sobald der Aufteilungsplan vorliegt, beginnen wir mit dem Antragsprozess. Wir übernehmen für dich nicht nur die Erstellung der planlichen Grundlage, sondern auf Wunsch auch den Antrag auf Abgeschlossenheitsbescheinigung in Hanau. Das heißt, du musst nichts selbst sortieren, sondern wir bereiten den Antrag vor, strukturieren ihn und reichen ihn ein. Auf Wunsch übernehmen wir auch gerne die Kommunikation mit der zuständigen Behörde, damit Rückfragen oder Nachforderungen nicht liegenbleiben.

Klare Korrespondenz statt Ping-Pong

Gerade im Antragsprozess entsteht Aufwand oft durch unklare Kommunikation. Deshalb ist die Korrespondenz ein wichtiger Teil des Prozesses, denn sie sorgt dafür, dass der Antrag nicht nur erstellt, sondern auch sauber geführt wird.

Abgeschlossenheitsbescheinigung

DIE NOTWENIDGKEIT DER ABGESCHLOSSENHEITS-BESCHEINIGUNG

Die Abgeschlossenheitsbescheinigung in Hanau ist keine formale Zusatzanforderung, sondern eine zentrale Voraussetzung, um ein Gebäude rechtlich sauber in einzelne Einheiten zu teilen. Sie ist die Grundlage dafür, dass aus einem Gesamtobjekt klar abgegrenzte und nachvollziehbar dokumentierte Einheiten entstehen. Ohne diese Grundlage wird die Aufteilung schnell erklärungsbedürftig oder fehleranfällig. Somit bildet die Abgeschlossenheitsbescheinigung das verbindliche Fundament für eine saubere Eigentumsaufteilung.

Ein sauber geführter Prozess

Durch einen sorgfältig vorbereiteten Aufteilungsplan und einen strukturiert geführten Antrag stellen wir einen nachvollziehbaren und professionellen Prozess sicher.

Digitaler Antrag auf Abgeschlossenheitsbescheinigung auf einem Laptop für die Wohnungsaufteilung

Planen

Mit vollständigen Gebäudedaten präzise Entscheidungen treffen und wieder mehr Zeit für gute Architektur haben.

IFC-BIM-Bestandsmodell als Single Source of Truth mit abgeleiteten Schnitten, Grundriss und 3D-Ansicht für die Planung.

entwickeln

Mit strukturierten Gebäudedaten gezielt Potentiale sichtbar machen, Aufteilungen erstellen und strategisch entwickeln

Mehrgeschossige Grundrisse als farbiger Flächenplan (MF-GIF) aus 3D-Aufmaß – Einheiten und Nutzflächen übersichtlich markiert.

dokumentieren

Scheckheft-Pflege für Immobilien. Mit der richtigen Datenpflege sicher die Übersicht behalten.

SMART+AGILE Flächen-Dashboard: Brutto-Grundfläche (BGF) nach DIN 277 für Mustermann-Straße 16 in Leipzig – Raumtabelle mit Abzugsfaktoren und Summe.

Kurzer Vor-Ort-Termin

Wir scannen effizient, um Störungen für Mieter und den laufenden Betrieb so gering wie möglich zu halten. So kommst du schnell zu belastbaren Bestandsdaten.

Geprüfte Datenbasis

Qualitätsprüfung und scanbasierte Bestandserfassung sind Standard. So kann der Aufteilungsplan auf konsistenten Daten statt auf Annahmen aufbauen.

Deutschlandweit nach Standard

Unabhängig vom Standort arbeiten wir mit derselben Methodik und denselben Kriterien. Dadurch erhältst du einen klaren Prozess statt Improvisation.

Los geht’s

DEIN ANTRAG AUF ABGESCHLOSSENHEITS-BESCHEINIGUNG IN Hanau

Möchtest du die Einheiten deines Gebäudes sauber aufteilen, einen belastbaren Aufteilungsplan erstellen lassen oder den Antrag auf Abgeschlossenheitsbescheinigung in Hanau strukturiert vorbereiten? Wir erfassen den Bestand per Laserscan, leiten daraus die erforderlichen Planunterlagen ab und begleiten auf Wunsch auch die Antragseinreichung. Am Ende erhältst du klare Unterlagen, mit denen du direkt in den Verkauf starten kannst.

HU

Angebot abrufen

Informationen anfordern

Erstgespräch vereinbaren

FAQ: ANTRAG AUF ABGESCHLOSSENHEITSBESCHEINIGUNG

Was ist eine Abgeschlossenheitsbescheinigung?

Die Abgeschlossenheitsbescheinigung ist eine behördliche Bescheinigung, die bestätigt, dass die einzelnen Einheiten eines Gebäudes in sich abgeschlossen sind. Sie ist eine zentrale Grundlage, um Einheiten rechtlich sauber aufzuteilen.

Wann braucht man sie?

Sie wird typischerweise benötigt, wenn Wohn- oder Teileigentum gebildet werden soll. Dies ist immer dann der Fall, wenn aus einem Gebäude oder einem Gebäudeteil rechtlich eigenständige Einheiten entstehen sollen.

Was ist der Aufteilungsplan und was liefert ihr?

Ein Aufteilungsplan ist ein Plan, der die einzelnen Einheiten und ihre Abgrenzungen nachvollziehbar darstellt. Er ist Teil unserer Standardleistung für den Antrag auf Abgeschlossenheitsbescheinigung. Wir erstellen ihn auf Grundlage eines eigenen Laserscans des Bestands und bereiten die Unterlagen zur weiteren Verwendung strukturiert auf.

Macht ihr auch die Antragseinreichung?

Auf Wunsch übernehmen wir gerne neben dem Aufteilungsplan auch die Antragseinreichung. Ebenso die Kommunikation mit der zuständigen Behörde.

Braucht ihr Altpläne?

Nein, die Grundlage unserer Leistung ist ein eigener Laserscan, der registriert und einer Qualitätssicherung unterzogen wird. Vorhandene Altpläne können beim Abgleich helfen, bilden aber nicht die maßgebliche Grundlage.

Wie läuft der Prozess ab?

Der Ablauf ist zügig und klar: Zunächst klären wir im Kurzcheck das Ziel, das Objekt und den Umfang. Anschließend erfassen wir den Bestand per Laserscan. Auf dieser Grundlage erstellen wir den Aufteilungsplan. Auf Wunsch übernehmen wir auch die Antragseinreichung und begleiten Sie im abgestimmten Rahmen.

Wie lange dauert es?

Dies hängt vor allem vom Objekt, dem Umfang der Unterlagen sowie der behördlichen Bearbeitungsdauer im Antragsprozess ab. Den Vor-Ort-Termin und die planseitige Aufbereitung können wir nach dem Kurzcheck realistisch einschätzen. Für die behördliche Bearbeitung selbst können wir jedoch keine konkreten Zusagen abgeben.

Welche Voraussetzungen braucht ihr vor Ort?

Es ist wichtig, dass die zu erfassenden Bereiche gut zugänglich sind. Je besser der Zugang organisiert ist, desto reibungsloser verläuft der Termin vor Ort. Bei komplexeren Objekten klären wir etwaige Besonderheiten vorab in einem Kurzcheck.

Welche Unterlagen oder Klärungen werden vorab benötigt?

Hilfreich sind die Objektadresse sowie Angaben zur Anzahl der Einheiten und zur ungefähren Größe des Objekts. Die Prüfung des baulichen Bestands im Sinne der Landesbauordnung gehört nicht zu unseren Leistungen. Die Verantwortung für die Einhaltung öffentlich-rechtlicher Vorgaben liegt beim Auftraggeber.